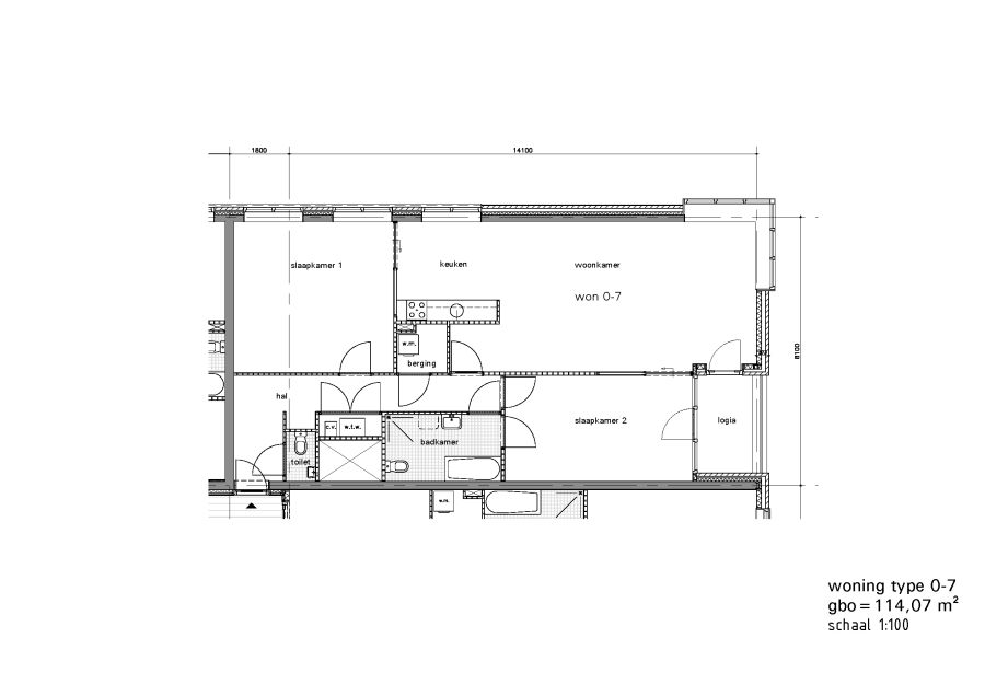
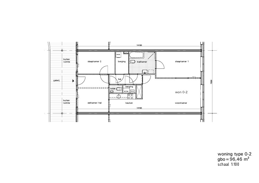
Project:
Thomaskerk
Rivierenbuurt, Amsterdam
2003 — 2006
Rivierenbuurt, Amsterdam
2003 — 2006
Architect:
Quist Wintermans Architecten
Opdrachtgever:
De Principaal
Programma:
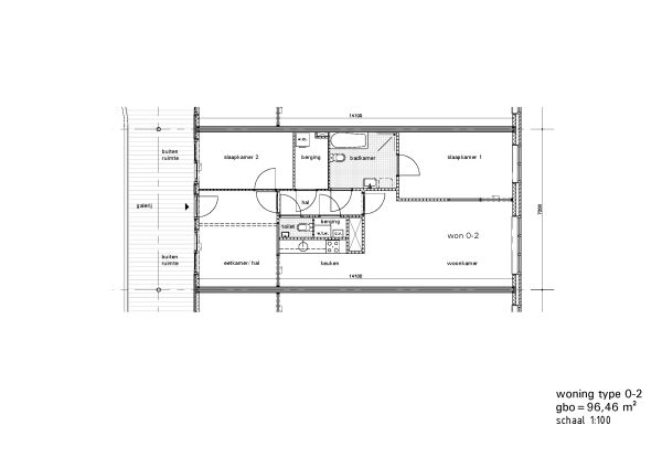
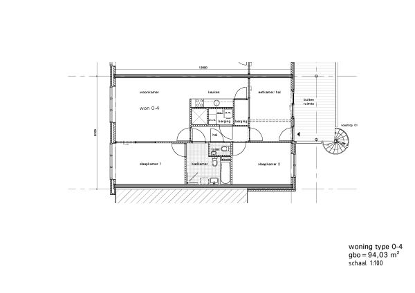
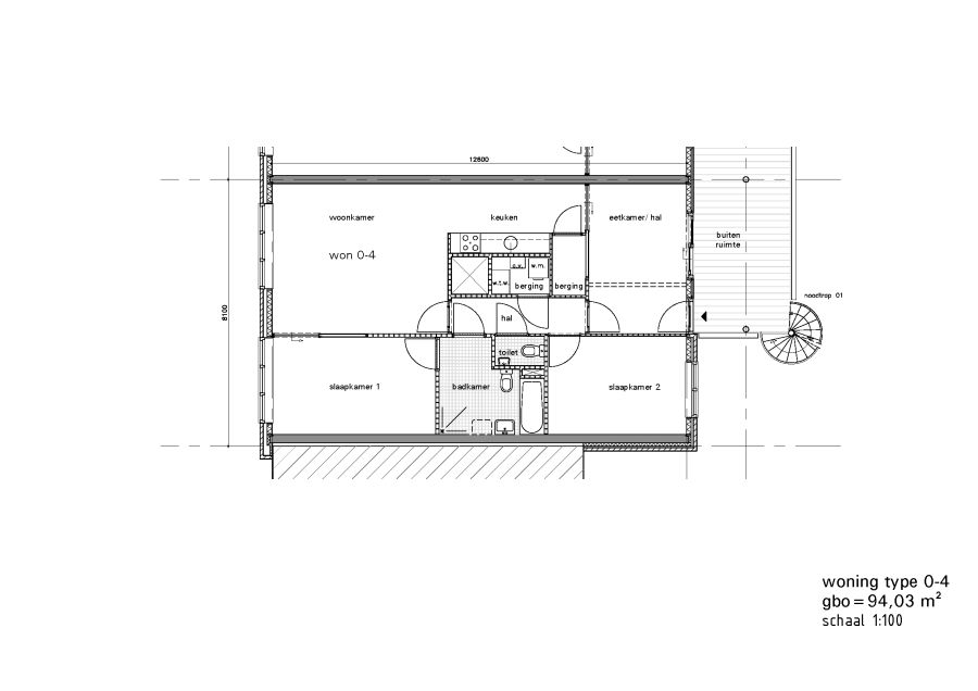
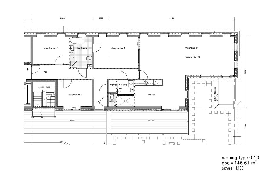
34 appartementen, 3 winkels en een zorgcentrum
Brochure Thomaskerk, wonen:
Folder Thomaskerk, parkeren:
© 2011–2026 Hans van der Zant ¦ Website ontwikkeld door Krater Ontwikkeling

























